Weather Monitoring Stations for Solar Plants

MBMet Series – IEC 61724-1 Compliant Weather Monitoring

The MBMet Weather Monitoring Stations are precision-engineered, fully integrated systems for acquiring real-time meteorological and solar resource data across diverse energy and industrial applications. Designed to meet industry standards, these stations serve as a critical input layer for PR calculations, environmental alarms, and yield analytics. Each station combines high-accuracy sensors, robust data acquisition, and reliable communication infrastructure.

01
Cost-Optimized Design

Modular hardware with sensor-level configurability helps reduce capex and ensures application-specific optimization without overengineering.

02
Scalable System Architecture

Adaptable for both single-site installations and networked multi-site SCADA/cloud platforms using MBSCADA and third-party systems.

03
Global Standards Compliance

Supports Class A, B, and C sensor configurations as per industry standard, with proper mounting, placement, and calibration guidelines.

Key Features of Our Weather Monitoring Stations for Solar Plants

Customizable Sensor Suite

Choose from a wide range of sensors based on project class and climate zone: irradiance, wind, rainfall, humidity, temperature, and soiling.

Robust Data Logging (MBLogger Series)

MBLogger 1000 and Nano support analog, digital, pulse, and Modbus RTU inputs, ensuring full compatibility with all MBMet and third-party sensors.

Surge-Protected Junction Boxes

IP65-certified enclosures with lightning surge protection, DIN terminal blocks, and structured cable routing for easy O&M.

Multi-Protocol Communication

Native support for Modbus RTU, Modbus TCP/IP, FTP, SNTP, and optional cellular/GSM modules for off-grid and remote operation.

MBSCADA & Cloud Integration

Live data feeds can be accessed via local SCADA or MBSCADA Met Cloud, enabling centralized monitoring, trend analytics, and alert logic.

Comprehensive Field Support

Supplied with installation kits, mounting hardware, shielded cables, and structured documentation for faster commissioning and lower installation cost.

Commonly Sensors Used

Sensor Type Model / Description
Global Horizontal / Inclined / Tilted Irradiance (GHI / GII / GTI), Plane of Array Irradiance (POA), Albedo MBMet-500 / 501 / 502 – Reference Cells.
EKO MS80SH / Kipp & Zonen SMP-10/12 Class A Pyranometers
Wind Speed & Direction MBMet-100 / 110 / 130, Davis Instruments, Barani Design
Rainfall MBMet-200, Davis Instruments, Barani Design
Ambient Temperature, Relative Humidity, Barometric Pressure, Air Density MBMet-901 Series
Soiling Loss Index MBMet-700 – Dual-panel system with real-time soiling ratio
Module Temperature MBMet-800 Series
Direct & Diffuse Irradiance EKO MS80SH+, MS90+ / Kipp & Zonen Razon
Cloud Cover Sensor EKO ASI-16, PCCD

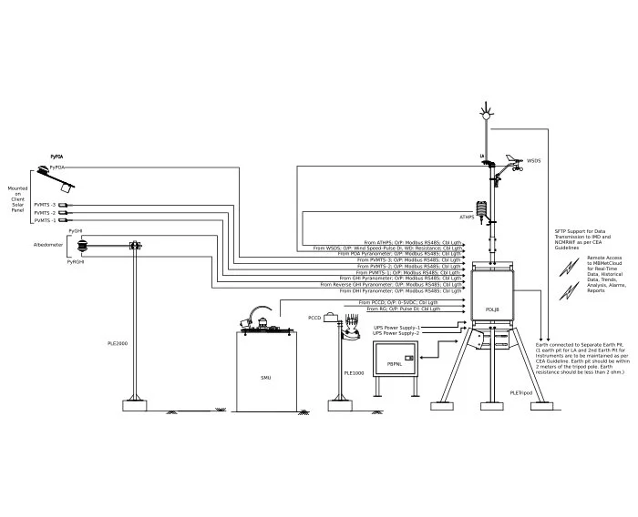
General
Architecture

Please note: The architecture shown is a general representation; actual implementation may vary based on solar plant requirements.